
Según el pliego «la actuación consiste en la construcción de una nueva sede para el Conservatorio Profesional de Música C.P.M. “Paco de Lucía”, en el municipio de Algeciras (Cádiz).
Se estima que el centro tendrá una capacidad para 600 puestos escolares y se impartirán las siguientes enseñanzas:
– Enseñanzas Elementales Básicas: tanto primer como segundo ciclo en los que se estructuran. Cada ciclo consta de dos cursos.
– Enseñanzas Profesionales: los seis cursos en los que se estructuran.
La parcela cuenta con una superficie de 6.083 m2, es de forma trapezoidal con pendiente descendiente en sentido noroeste-sureste. Linda con el Norte y el Oeste con parcelas edificadas, por el Sur con la calle Vicente de Paul y por el Este con calle Fuente Nueva.
La tipología del edificio a proyectar deberá ser lo más compacta posible, al objeto de optimizar recorridos, instalaciones, etc. repercutiendo en un ahorro económico y energético, así como optimización de la ocupación de la parcela.
Dado el uso del edificio y las actividades a desarrollar en el mismo serán especialmente importantes las consideraciones tomadas respecto a aislamiento y acondicionamiento acústico de los espacios, así como la iluminación y ventilación de los mismos para conseguir que las actividades artísticas se puedan desarrollar en condiciones óptimas.»

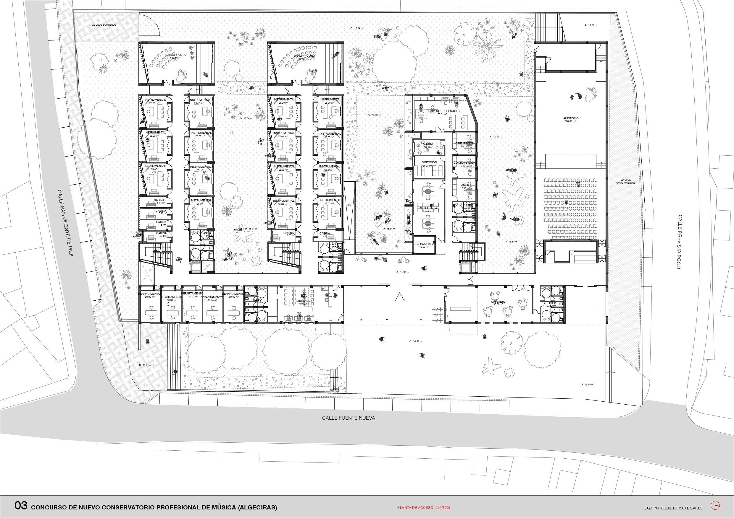
El proyecto se organiza en base a cuatro piezas, siendo tres de ellas de similar concepción. Estas tres forman la estructura base del conservatorio, albergan las aulas y las zonas principales de estudio, acometen perpendicular a la pieza de una única planta que recoge los servicios más generales del edificio, estos tres «barcos», que parecen esperar en dique seco, ofrecen, constantemente, líneas quebradas para potenciar la acústica interior de los espacios que albergan. La cuarta pieza, diversa a las anteriores, recoge el auditorio principal del edificio.







esfero ©